


Description
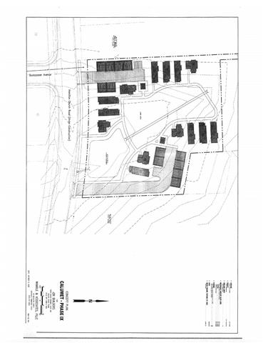
PERFECT SPOT FOR A SUBDIVISION AND ALREADY APPROVED BY METRO TO BUILD 13 DETACHED HOMES - YOU CAN ALSO REDESIGN IT FROM WHAT WAS ORIGINALLY APPROVED IF IT MAKES MORE SENSE
Listing Agent: Terry E DeSelms Listing Office: DeSelms Real Estate © RealTracs. All rights reserved.
Information Deemed Reliable, but Not Guaranteed. The property information being provided is for consumers’ personal, non-commercial use and may not be used for any purpose other than to identify prospective properties consumers may be interested in purchasing. The data relating to real estate for sale on this web site comes in part from the participating Brokers. Updated: 29th April, 2026 8:51 AM (UTC)
Information Deemed Reliable, but Not Guaranteed. The property information being provided is for consumers’ personal, non-commercial use and may not be used for any purpose other than to identify prospective properties consumers may be interested in purchasing. The data relating to real estate for sale on this web site comes in part from the participating Brokers. Updated: 29th April, 2026 8:51 AM (UTC)









